منتديات للبناء فنون

منتديات للبناء فنون (http://www.llbf.com.sa/vb/index.php)
-   المخططات المعمارية (http://www.llbf.com.sa/vb/forumdisplay.php?f=20)
-   -   أريد آرائكم في المخطط (http://www.llbf.com.sa/vb/showthread.php?t=693)

ابو تميم 01-08-2011 01:02 AM

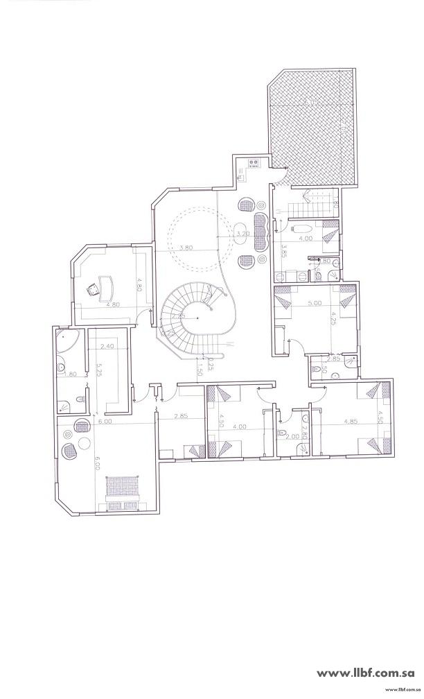
أريد آرائكم في المخطط
 
http://www.llbf.com.sa/uploads/download.php?img=3382

ابو تميم 01-08-2011 01:19 AM

ومارأيكم في الدرج أشوف إنه جميل لكن أخذ مساحة كبيرة لكن ماوجدت حل .. من عنده حل يتحفنا به عااااااااجلا

أديم 01-08-2011 02:03 AM

أهلا بك

قبل أن نتناقش حول المخطط والدرج

لدي بعض من الأسئلة

كم مساحة الأرض طولا وعرضا؟؟

هل رسمت المخطط بتخطيط الحاجة والواقع ..أم من بحر الأماني والأحلام؟؟

عذرا ..فأنا أرى مساحات مهدرة..وكبيرة جدا للضيوف خاصة


فكر..بالبناء..وميزانيته..التأثيث ..ومتابعة تنظيفه..استهلاك الكهرباء..

ثم من استهلكت تلك المساحات لهم ..كم مرة سيعودونك في الشهر أوالأسبوع؟؟

وان كان هذا هو احتياجك ومتطلباتك...فالأمر يعود لقناعاتك

الدرج سنثري موضوعه لاحقا

ابو تميم 01-08-2011 02:27 AM

أديم
شكرا للتجاوب

مساحة الأرض واسعة ولله الحمد 35 * 55

هذا مخطط للدور الأرضي فقط وغرف النوم في الدور الأول وهو متوافق للحاجة والواقع بحسب قناعتي

أديم 01-08-2011 03:06 AM

إذن نبارك لك المخطط

ماشاء الله تبارك الله

لدي بعض من الملاحظات

غرفة الطعام صغيرة مقارنة بمجالس الضيوف!!!

لذلك حبذا لو ..جعلت بابه سحاب ...كي تستفيد من المساحة حال الحاجة

وايضا تجعل له اطلالة جميلة (بباب زجاجي كبير)على الحديقة وتوسعةً له حال كانت الأجواء جميلة وربيعية

اضفت مكان للخادمة أو درج خدمة كمقترح ..ولك العمل بما يناسب احتياجك

الدرج جميل جدا ويتوائم مع مساحة منزلك

وحبذا لو قللت من التفاف دائرته كي لا يحجز رغبتك في استخدام مساحة الصالة كتوسعة لغرفة الطعام

غرفة النوم..

كأن موقعها غير متوائم مع انسيابية المخطط وتناغمه..

لا أعرف ربما لواستحدثت لها مكانا آخر كان من الأفضل


وضعت موقعا مقترحا ..ربما يناسبك وبالتالي ستنضم غرفة النساء للمنزل الى حد ما..


بالتوفيق

http://www.llbf.com.sa/uploads/download.php?img=3386

ابو تميم 01-08-2011 03:30 AM

لكي تتضح الصورة أكثر هذه تكملة المخطط

http://www.llbf.com.sa/uploads/download.php?img=3390


http://www.llbf.com.sa/uploads/download.php?img=3391

ابو تميم 01-08-2011 09:50 AM

http://www.llbf.com.sa/uploads/download.php?img=3392

الواجهة الشرقية

ابو تميم 01-08-2011 05:45 PM

يعطيك العافية يا أديم ... ننتظر ملاحظات أخرى على الدور الأول والواجهات .. وكذلك ابو ابراهيم والاخوان

أديم 01-09-2011 03:16 PM

الدور الأول

يحتاج ربما الى اعادة تخطيط وتنسيق

بما يتناسب مع مساحة الدور .. وتوزيعه بشكل أفضل

والدرج للدور الثالث من الأفضل أن يكون متصلا بالدور الأرضي..

ابو تميم 01-09-2011 06:47 PM

ليتك يا أديم تنورينا بالملاحظات ..

أديم 01-10-2011 08:31 PM

أبو تميم

أهلا بك مجددا..لم اتجاهلك اطلاقا...لكن أرجو منك اعطائي مزيدا من الفرصة

لأني أحاول التعديل بما يتناسب مع مخططك ورغباتك كما رسمتها أنت ..دون التغيير الجذري إن أمكن..

لكن لدي سؤال

هل صمم الدور الأول كأجنحة..كل جناح مستقل؟؟

هلاّ

اعطيتني بعضا من رغباتك واحتياجاتك ان استطعت

انتظرك..

ابو تميم 01-11-2011 10:54 AM

يعطيك العافية أديم

المطلوب فقط في الأول جناح رئيسي وغرف للأولاد والبنات وغرفة للخادمة

أديم 01-11-2011 10:15 PM

عدلت ...بما استطيع

اتمنى أن يعجبك



http://www.llbf.com.sa/uploads/download.php?img=3441

ابو تميم 01-19-2011 06:30 PM

شكرا أديم ويكفيني أنه لم يعطيني رأيه إلا شخصك الكريم ... فجزاك الله خيرا

ماجد المحيميد 01-20-2011 09:50 AM

http://www.llbf.com.sa/uploads/download.php?img=3908

هلا بك

الدرج يشغل مساحة كبيرة
من الجيد أن تكون بدايته بشكل منحني بالقرب من جدار المجلس ويبداء بشكل منحني بعد ذلك يستمر إلى الدور الأول

جدار الممر من المجلس للمغاسل يكون أيضاً منحني مع الدرج

والأستاذة/ أديم ما قصرت بارك الله فيها وفي جهودها





ابو تميم 01-26-2011 11:39 AM

شكرا ابو ابراهيم

حاولنا نبحث عن حل في تصغير المساحة لكن وجدنا ان هذا افضل الحلول لوجود الباب الذي يفتح على الصالة .. وماذكرته من حل هل سيصغر المساحة ؟

ماجد المحيميد 01-26-2011 11:43 AM


هلا بك

أخي الكريم

الدرج حالياً يشغل مساحة لا بأس بها

لماذا لا تفكر في تغيير موقع بداية الدرج!!

أولاً يتم إلغاء الباب المؤدي من الصالة إلى مجلس الرجال

وتكون بداية الدرج من عند الباب السحاب الخاص بصالة الطعام من هذه الجهة

وفي هذه الحالة تتسع مساحة الصالة خاصة في موقع بداية الدرج الحالي

هذه مجرد فكرة

أتمنى لك التوفيق


ابو تميم 01-26-2011 12:26 PM

ابو ابراهيم .. المشكلة ان الباب شبه ضروري لانه في حالة وجود الضيوف فيصعب الاتيان بالشاي مثلا او القهوة مع المقلط ..

شكرا لتجاوبك .

أديم 01-26-2011 12:33 PM

طيب لا بأس بباب تحت الدرج للخدمة فقط كما ذكرت واليك هذا الرابط قد يفيدك

http://llbf.com.sa/vb/showthread.php?t=428

وفقك الله

ماجد المحيميد 01-26-2011 06:21 PM

اقتباس:
المشاركة الأصلية كتبت بواسطة ابو تميم http://llbf.com.sa/vb/fnoon/buttons/viewpost.gif
ابو ابراهيم .. المشكلة ان الباب شبه ضروري لانه في حالة وجود الضيوف فيصعب الاتيان بالشاي مثلا او القهوة مع المقلط ..

شكرا لتجاوبك .




هلا بك

أخي الكريم

معظم إن لم يكن جل الملاك الذين لديهم باب بين الصالة ومجلس الرجال

"يشتكون"

من الإزعاج وانتقال الصوت بين المجلس والصالة لاسيما في حال وجود ضيوف
رجال ونساء

إضافة إلى أن هذا الباب عند فتحه فهنا يكون عمق البيت مشاهد للضيوف الرجال فما بالك في حال وجود ضيوف من النساء أيضاً!

مسألة توصيل الشاي والقهوة
أمرها ميسر
فيتم إحضارها عن طريق صالة الطعام
أو من خلال الحوش

المسألة بسيطة جداً ولا تتطلب مني وضع باب لأجل التخديم

بالتوفيق

كويتيه 04-24-2011 12:03 AM

المخطط روعه وقتراحاتكم اروع ياليت لما ينتهى البناء صاحب الموضوع يحط الشكل النهائى للبيت

ام ليان وعزوز 06-01-2011 06:00 PM

بصرررراحة مع ان خيرتي مو ذيك بس مخطط روووووعه بجد اعجبني واسمح لي حفظته
ربي يوفقك

ام ليان وعزوز 06-02-2011 04:17 PM

ابوتميم كم مساحته الدورر الارضي

دودي خالد 06-03-2011 01:36 AM

اقتباس:

المشاركة الأصلية كتبت بواسطة ام ليان وعزوز (المشاركة 15055)
ابوتميم كم مساحته الدورر الارضي

مساحة مسطح الدور الأرضي تقريبا كما هو واضح من المخطط ( 20م * 22م ) إجمالي مساحة الدور الأرضي بحدود 440م2.

يعني هذا المخطط محتااج أرض لا تقل مساحتها عن 30م * 30م = 900م2

أقل من هذه الأبعاد ما راح ينفع لها هذا المخطط.

تحياتي،،
خالد

ام ليان وعزوز 06-03-2011 11:01 AM

تيب هل ممكن نصغر في المخطط
يعني المجالس الرجالية والنسائية والمقلط كبيرة مره

ام ليان وعزوز 06-03-2011 02:09 PM

صح المخطط كبير بس فية زوايا يعني موكامل 22 في 20
اتوقع حدود مساحته 360


الساعة الآن 07:32 AM.

Powered by vBulletin® Version 3.8.4, Copyright ©2000 - 2025, Jelsoft Enterprises Ltd. TranZ By Almuhajir
F.T.G.Y 3.0 BY: D-sAb.NeT © 2011
HêĽм √ 3.1 BY: ! ωαнαм ! © 2010

a.d - i.s.s.w