منتديات للبناء فنون

منتديات للبناء فنون (http://www.llbf.com.sa/vb/index.php)
-   المخططات المعمارية (http://www.llbf.com.sa/vb/forumdisplay.php?f=20)
-   -   رأيكم في مخطط الدور الأرضي (http://www.llbf.com.sa/vb/showthread.php?t=267)

خالد.كم 10-29-2010 06:22 PM

رأيكم في مخطط الدور الأرضي
 
1 مرفق
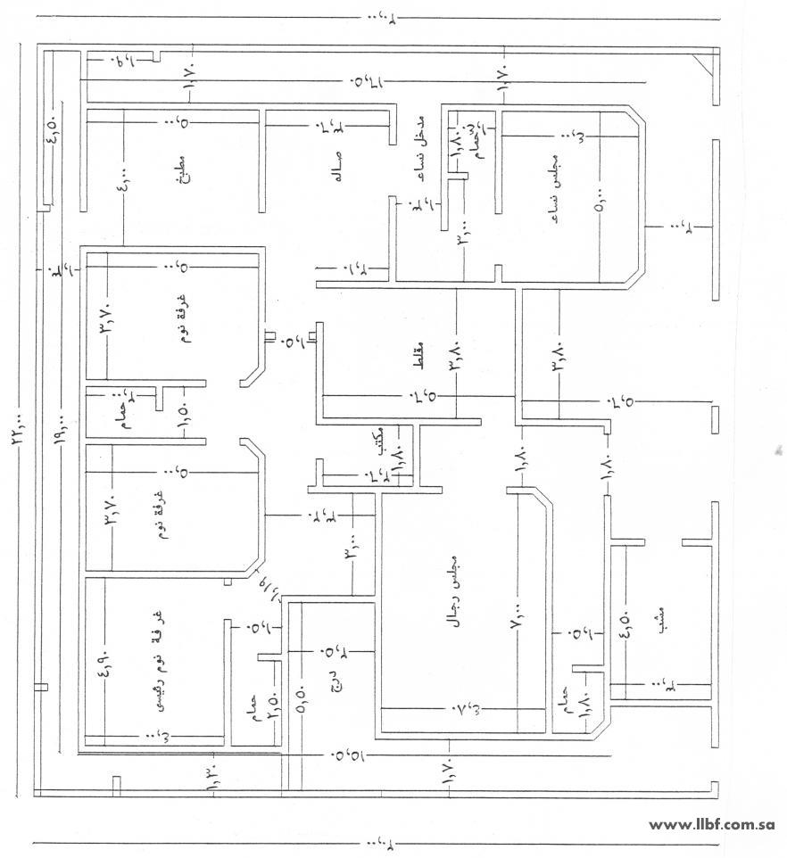
اخي ماجد ابي رائك في الدور الارضي
فهو سكن خاص


سبق ان اعطيتني رائك في الدور الثاني وهو عباره عن شقق

للك تحياتي

اخوك خالد


رابط الصوره


http://llbf.com.sa/vb/attachment.php...9&d=1288165829

ماجد المحيميد 10-29-2010 07:55 PM


ماجد المحيميد 10-30-2010 05:50 AM


هلا بك

أخي الكريم

المخطط ربما يفي باحتياجتكم ورغباتكم حيث توفرت غرف النوم والخدمات من دورات مياه ومطبخ
إضافة إلى أعطاء الضيوف نصيب الأسد من الفراغات

المخطط فيه كثير من الفراغات الغير مستغلة والممرات
مجلس الرجال من الجيد الاكتفى بطول 6 م واستغلال 1 م من جهة مجلس النساء وفتح مجلس النساء على الصالة العائلية

استغلال (العطام) وفتحها على الصالة لاستخدامها يومياً كجزء من الصالة وذلك بوضع باب سحاب كبير يغلق عند استخدام الطعام فقط وبقية العام يكون مفتوح

المكتب مساحة صغيرة جداً ولن يستفاد منه

من الجيد توظيف البعد البصري وفتح المساحات

بجميع الأحوال المخطط يلبي احتياجك ولكن من الجيد ان أقوم ببناء منزلي بمخطط يلبي احتياجاتي وبتخطيط رائع بعيداً عن الفراغات وكثرة الجدران والممرات

لا أخفيك أن المخطط يحتاج إلى الكثير من الجهد لوضعه بالشكل المثالي

تحياتي

خالد.كم 10-30-2010 07:44 AM

اقتباس:

المشاركة الأصلية كتبت بواسطة ماجد المحيميد (المشاركة 1205)

هلا بك

أخي الكريم

المخطط ربما يفي باحتياجتكم ورغباتكم حيث توفرت غرف النوم والخدمات من دورات مياه ومطبخ
إضافة إلى أعطاء الضيوف نصيب الأسد من الفراغات

المخطط فيه كثير من الفراغات الغير مستغلة والممرات
مجلس الرجال من الجيد الاكتفى بطول 6 م واستغلال 1 م من جهة مجلس النساء وفتح مجلس النساء على الصالة العائلية

استغلال (العطام) وفتحها على الصالة لاستخدامها يومياً كجزء من الصالة وذلك بوضع باب سحاب كبير يغلق عند استخدام الطعام فقط وبقية العام يكون مفتوح

المكتب مساحة صغيرة جداً ولن يستفاد منه

من الجيد توظيف البعد البصري وفتح المساحات

بجميع الأحوال المخطط يلبي احتياجك ولكن من الجيد ان أقوم ببناء منزلي بمخطط يلبي احتياجاتي وبتخطيط رائع بعيداً عن الفراغات وكثرة الجدران والممرات

لا أخفيك أن المخطط يحتاج إلى الكثير من الجهد لوضعه بالشكل المثالي

تحياتي

الف شكر اخوي ماجد

وملاحظات سوف اضعهاء في الحسبان


الساعة الآن 04:59 AM.

Powered by vBulletin® Version 3.8.4, Copyright ©2000 - 2025, Jelsoft Enterprises Ltd. TranZ By Almuhajir
F.T.G.Y 3.0 BY: D-sAb.NeT © 2011
HêĽм √ 3.1 BY: ! ωαнαм ! © 2010

a.d - i.s.s.w