منتديات للبناء فنون

منتديات للبناء فنون (http://www.llbf.com.sa/vb/index.php)
-   فنون تصاميم الشقق و الفلل و القصور (http://www.llbf.com.sa/vb/forumdisplay.php?f=44)
-   -   الابداع المعماري والتصميم الداخلي - 2 (http://www.llbf.com.sa/vb/showthread.php?t=8345)

جي آر 08-21-2013 10:24 PM

الابداع المعماري والتصميم الداخلي - 2
 
http://www.almuhands.org/forum/store...786498_787.gif
http://www.almuhands.org/forum/store...785820_960.gif
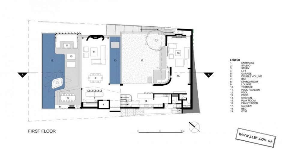
أعجبني هذا التصميم لما له من سحر الرؤيا البانورامية لإطلالته علي منطقه ساحليه
أيضا روعة تصميمه في الإطالة الداخلية ودمجها مع فناء المنزل خصوصا في الصالة
من خلال الواجهه الزجاجية ووضع لمسات طبيعية بعمل حوض الماء خلف الواجهه
مما أعطي الصالة رونق بالاطالة وما تعكسه الاضائه الطبيعيه لتبعث في النفس الراحة والبهجه


http://www.llbf.com.sa/uploads/do.php?img=34962

http://www.llbf.com.sa/uploads/do.php?img=34963

http://www.llbf.com.sa/uploads/do.php?img=34964

http://www.llbf.com.sa/uploads/do.php?img=34965

http://www.llbf.com.sa/uploads/do.php?img=34966

http://www.llbf.com.sa/uploads/do.php?img=34967

http://www.llbf.com.sa/uploads/do.php?img=34968

http://www.llbf.com.sa/uploads/do.php?img=34969

http://www.llbf.com.sa/uploads/do.php?img=34970

http://www.llbf.com.sa/uploads/do.php?img=34971

http://www.llbf.com.sa/uploads/do.php?img=34972

http://www.llbf.com.sa/uploads/do.php?img=34973

http://www.llbf.com.sa/uploads/do.php?img=34974

http://www.llbf.com.sa/uploads/do.php?img=34975

http://www.llbf.com.sa/uploads/do.php?img=34977

http://www.llbf.com.sa/uploads/do.php?img=34978

بارقة 12-06-2013 11:57 PM

رائع يعطيك العافية


الساعة الآن 11:28 AM.

Powered by vBulletin® Version 3.8.4, Copyright ©2000 - 2025, Jelsoft Enterprises Ltd. TranZ By Almuhajir
F.T.G.Y 3.0 BY: D-sAb.NeT © 2011
HêĽм √ 3.1 BY: ! ωαнαм ! © 2010

a.d - i.s.s.w