منتديات للبناء فنون

منتديات للبناء فنون (http://www.llbf.com.sa/vb/index.php)
-   المخططات المعمارية (http://www.llbf.com.sa/vb/forumdisplay.php?f=20)
-   -   تحية للجميع - رأيكم بالتصميم معماريا (http://www.llbf.com.sa/vb/showthread.php?t=897)

ابوتركي 2011 01-23-2011 11:10 PM

تحية للجميع - رأيكم بالتصميم معماريا
 
1 مرفق
تحية للمهندس ماجد

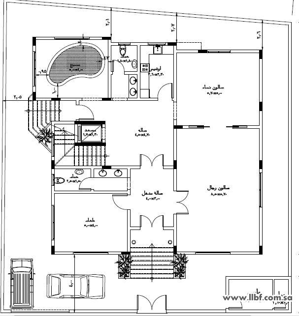
اود ابداء رأيك معماريا في تصميم الفيلا (في المرفقات) بمساحة ارض 20*20 = 400م2

شكرا
ابو تركي

أديم 01-24-2011 01:55 AM

أهلا بك

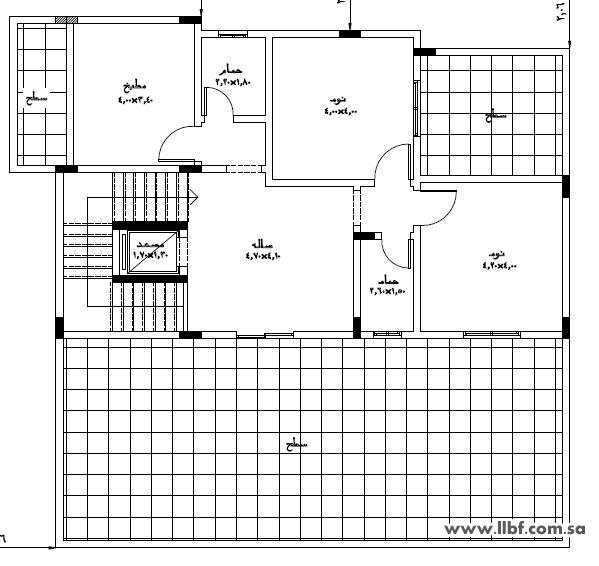
يبدو أن المرفقات ناقصة..نأمل في شئ من التوضيح ..الدور الأرضي ,,, الدور الأول


بناء عليه ..سيتم ابداء الرأي وشئ من المقترحات

ننتظرك

أديـم


http://www.llbf.com.sa/uploads/download.php?img=3987

ابوتركي 2011 01-24-2011 04:31 AM

شكرا على الرد
 
3 مرفق
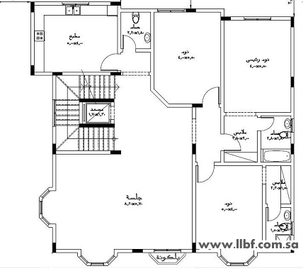
المرفق السابق للدور الاول
بالنسبة للدور الارضي والملحق تجدها بالمرفقات مع الواجهة

وشكرا

أديم 01-24-2011 06:17 AM

http://www.llbf.com.sa/uploads/download.php?img=3988


http://www.llbf.com.sa/uploads/download.php?img=3989



http://www.llbf.com.sa/uploads/download.php?img=3990




لي عودة قريبا..وأهلا برأي الجميع

أديــــم

أديم 01-24-2011 01:12 PM

هذه بعضا من المقترحات والمقاسات بامكانك تعديلها


جعلت المسبح في الوسط ليكون له اطلالة جميل من كل البيت

آمل أن تنال استحسانك

وان لم يكن فما زلنا..قيد التخطيط

لكن السؤال هل كل دور وحدة مستقلة

لأني لم أجد غرفة للغسيل ولا غرفة للمستودع وغرفة للخادمة؟؟؟

أهلا بك وننتظر رأيك

أديــــــــم



http://www.llbf.com.sa/uploads/download.php?img=4014

ماجد المحيميد 01-24-2011 07:07 PM


هلا بك

أخي الكريم

بالتوفيق أن شاء الله

يتضح بأن المطبخ الرئيسي سيكون بالدور الأول! إليس كذلك

مدخل النساء سيكون أعلاه مباشرة الدرج الرئيسي لذا يجب معرفة أرتفاع الدرج بدقة عن الباب قبل التنفيذ

مجلس النساء بعيد عن المدخل
وهذا يعني أن الضيوف سيطلعون على معظم أجزاء المنزل قبل الوصول لمجلس النساء

مجلس الرجال مطل على مجلس النساء

:):)

هذا ما أخفيك بيكون مصدر إزعاج عندما يتواجد ضيوف من النساء والرجال في وقت واحد

منطقة المسبح "تم أغتيالها"
فلا جزء من المنزل يطل على المسبح!!

غرفة الطعام
موقعها غير منطقي!!
من أين سيتم التخديم وإدخال الطعام وكذلك إخراج الأطعمة منها بعد أن يخرجوا الضيوف!!!
هل يتم إخراج الطعام أمام الضيوف وكذلك عند إحضاره!!

وهذا يعني أن المالك أو الأبناء هم من يقوم بالتحضير في "غرفة الطعام" لاستحالة وصول الزوجة أو البنات لها من أمام مجلس الرجال

هذه بعض الملاحظات
أتمنى أن أكون أضفت شيء مفيداً

بالتوفيق




ابوتركي 2011 01-25-2011 07:21 AM

السلام عليكم
 
الاخوة اديم/ابو ابراهيم

بالنسبة لسؤال الاخ اديم
"هل كل دور وحدة مستقلة"

هذا التصميم يمثل وحدة واحدة (فيلا) ولكني وضعت في الحسبان امكانية الفصل المستقبلي الى ثلاثة وحدات لكل ابن وحدة واحدة (كل دور وحدة - ارضي/اول/ملحق)

بالنسبة لملاحظات الاخ ابو ابراهيم اود ايضاح الاتي:

1- نعم المطبخ في الدور الاول
2- مدخل النساء سيكون أعلاه مباشرة الدرج الرئيسي لذا يجب معرفة أرتفاع الدرج بدقة عن الباب قبل التنفيذ

بعد مراجعة الامخطط تبين ان عدد درجات السلم هو 14 درجة وارتفاع كل درجة 15 سم مما يعني ان ارتفاع السقف عند مدخل النساء 210سم

وسؤالي هل هناك اشكالية في هذا الارتفاع وما هو الحل اذا وجدت اشكالية حقيقية.

3- مجلس النساء بعيد عن المدخل
وهذا يعني أن الضيوف سيطلعون على معظم أجزاء المنزل قبل الوصول لمجلس النساء


بالنسبة للمخل الجانبي فهو يفتح على مدخل بحجم صالة مما يعطينا احساس بالفخامة التي تتميز بها الفلل ذات الصوالين المفتوحة


4- مجلس الرجال مطل على مجلس النساء
هذا ما أخفيك بيكون مصدر إزعاج عندما يتواجد ضيوف من النساء والرجال في وقت واحد

هناك فاصل بين المجلسين وهو من نوع الابواب السحابة بارتفاع كامل الدور 330سم وعرض 300سم (كما هو موجود بقاعات الافراح بالفنادق والتي تستخدم لفصل قاعتين متلاصقتين لحفلتين مختلفتين وبدون انتقال اي اصوات بينهما)

5- غرفة الطعام
موقعها غير منطقي!!


هناك باب لمجلس الرجال يمكن اغلاقه في حالة تحضير الخدم لطعام الرجال في غرفة الطعام
كما يمكن اسخدام نفس غرفة الطعام لخدمة النساء بعد الانتهاء من خدمة الرجال

وهذا يجعل اختياري لموقع غرفة الطعام منطقيا لخدمة كل من الرجال ومن ثم النساء

وشكرا لمروركم

ابوتركي 2011 01-25-2011 09:54 AM

عفوا
 
ارجو المعذرة من الاخت اديم

واللبيب بالاشارة يفهم

تحياتي

ماجد المحيميد 01-25-2011 06:30 PM


هلا بك

أخي الكريم

أسأل الله لك التوفيق

بالنسبة لارتفاع مدخل النساء 2.10م فهذا لا أخفيك قليل
لاسيما بيكون هناك بلاط ودفان وتشطيب للأرضية قد يشغل حيز 15سم

وهنا يتبقى للمدخل 1.95م
لا أعتقد بأنها تلبي الحاجة لمدخل رئيسي للمنزل وخاصة الضيوف

بالتوفيق


ابوتركي 2011 01-26-2011 12:04 AM

الاخ ابو ابراهيم

تحية طيبة
وبعد

اشكرك على هذه الملاحظة الدقيقة والتي تنم عن معرفة متعمقة لديكم بالتصاميم المعمارية وهذا بالتالي يحسب لهذا المنتدى المتخصص

وسؤالي هنا

هل من حل لهذه الاشكالية والتي اعتبرتموها كبيرة وواضحة للعيان

في انتظار ردكم

والسلام ختام
ابو تركي


الساعة الآن 07:38 AM.

Powered by vBulletin® Version 3.8.4, Copyright ©2000 - 2025, Jelsoft Enterprises Ltd. TranZ By Almuhajir
F.T.G.Y 3.0 BY: D-sAb.NeT © 2011
HêĽм √ 3.1 BY: ! ωαнαм ! © 2010

a.d - i.s.s.w