منتديات للبناء فنون

منتديات للبناء فنون (http://www.llbf.com.sa/vb/index.php)
-   الاستشارات الهندسية (http://www.llbf.com.sa/vb/forumdisplay.php?f=5)
-   -   استفسار بخصوص مواقع الاعمدة (http://www.llbf.com.sa/vb/showthread.php?t=8351)

الأرض الطيبة 08-22-2013 09:43 PM

استفسار بخصوص مواقع الاعمدة
 
السلام عليكم ورحمة الله وبركاته

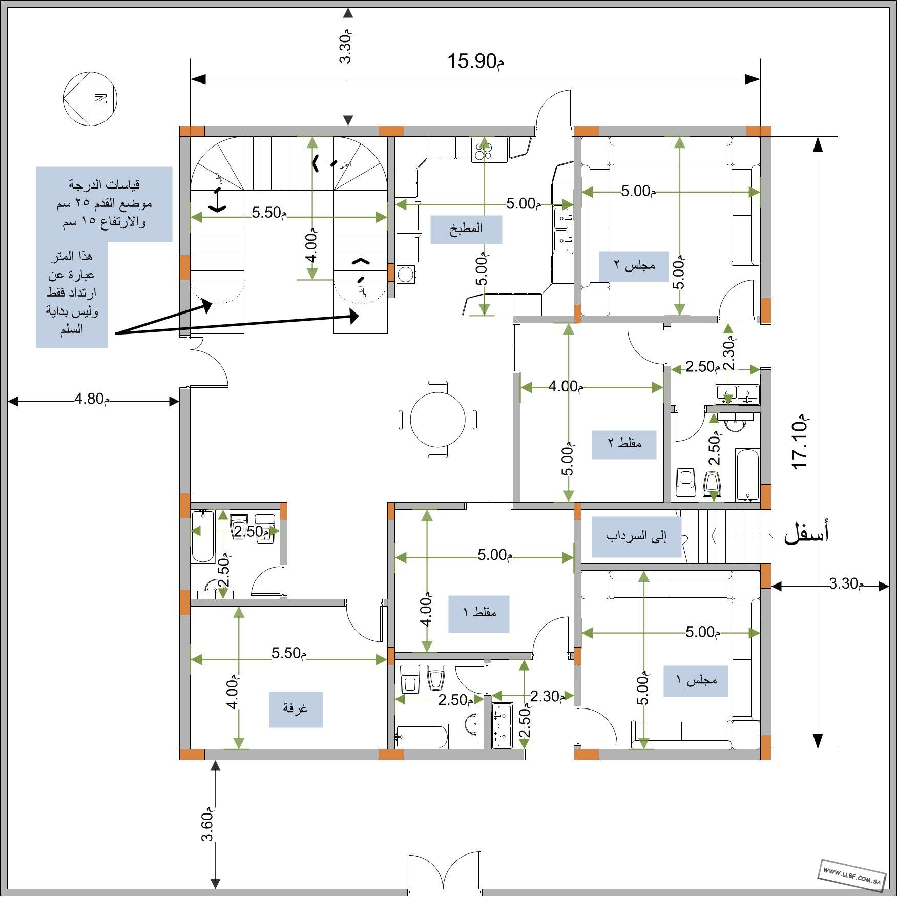
اضع اليوم مخطط لمنزل أرغب في معرفة صحة مواقع الاعمدة

حيث أنه يبدو لي عددها قليل وبعض الأعمدة تحتاج إلى ازاحة

فأرجو من اساتذتنا الكرام التفضل بمقترحاتهم وتصحيحاتهم

حتى وإن كانت بالتصحيح في المخطط بشكل كامل من مواقع الغرف والسلم

(الاعمدة معلمة بالون البرتقالي)

http://www.llbf.com.sa/uploads/do.php?img=35000


جي آر 08-22-2013 10:30 PM

اختي الكريمه
اسعد الله اوقاتك
لدراسة المخطط لابد من ارفاق كامل المخطط من الارضي الي السطح .
ملاحظتي المبدئيه
1- الذي لا يقبل وليس فيها لمسه جمالية غرف النوم الرئيسية .
حسب الرسم ان غرفة النوم خلف الحمام وانتي بكرامه والغرفه الي علي الواجهه مجلس .
لو اقتنعنا بها فكيف يكون غرفة النوم بدون شبابيك وغير مطله علي الشارع .
واذا كان العكس فمكان المجلس ايضا غير مناسب ويفتقد الضائه الطبيعيه والتهويه .
وبكل المقايس لا يمكن ان اضحي بغرفه مقابل وجود الحمام وانتي بكرامه علي الواجهه .
فيجب عكس الغرفه مع الحمام وانتي بكرامه بحيث يتوحد الحمامان في الركن ويكون بينهما منور .

2- عدد درج الفيلا 37 درجه وفيه درجه اضافيه ( وهي من بداية الارض لأول درجه ) يعني سار 38 علي 3 لفات ؟!!
انا مستغرب لماذا هذا العدد لانه بحسبة بسيطه 15x 38 ( إرتفاع الدرجه ) = 5.85 م
أي أن ارتفاع السقف = 5.85 م !!!! هل هو سقف معرض او مستودع او فيلا
اقصي ارتفاع للفيلا 4 م وبه يتم عمل تمديدات التكيف المركزي ووديكورات جبسيه للسقف
وبعد هذا يكون صافي السقف 3 م .
فيجب تصحيح عدد الدرج ويمكن عمل درج دائري او جعلها لفتين لاستغلال الفراغ اسفل الدرج لا شي اخر

3 - الدرج بين غرفة النوم هل هو درخ خارجي لوجود شقه في السطح ام ماذا ؟ وكيف سيتم الطلوع للسطح من داخل الفيلا ؟
هل هو عن طريق الدرج الداخلي اي سيتم تكملته للسطح .

الأرض الطيبة 08-23-2013 07:30 PM

أسف لعدم توضيح ماهية هذه الاماكن واستخداماتها

سوف ارفق صورة جديدة اوضح فيها اسماء الاماكن

بالنسبة للسلم لم أقم بالقياس الدقيق له علما ان ارتفاع السقف 4 متر

أما الدرج الخارجي فهو درج من الخارج يدخل إلى السرداب أي إلى الاسفل

ومن ناحية الغرف فإنه لا يوجد في الطابق الارضي سوا غرفة واحدة فقط وهي في الركن الجنوبي الغربي من الصورة

أما ماضننته غرفة رئيسية فهي ملقط يمكن فتحه على المجلس أو على الصالة

الأرض الطيبة 08-23-2013 08:31 PM

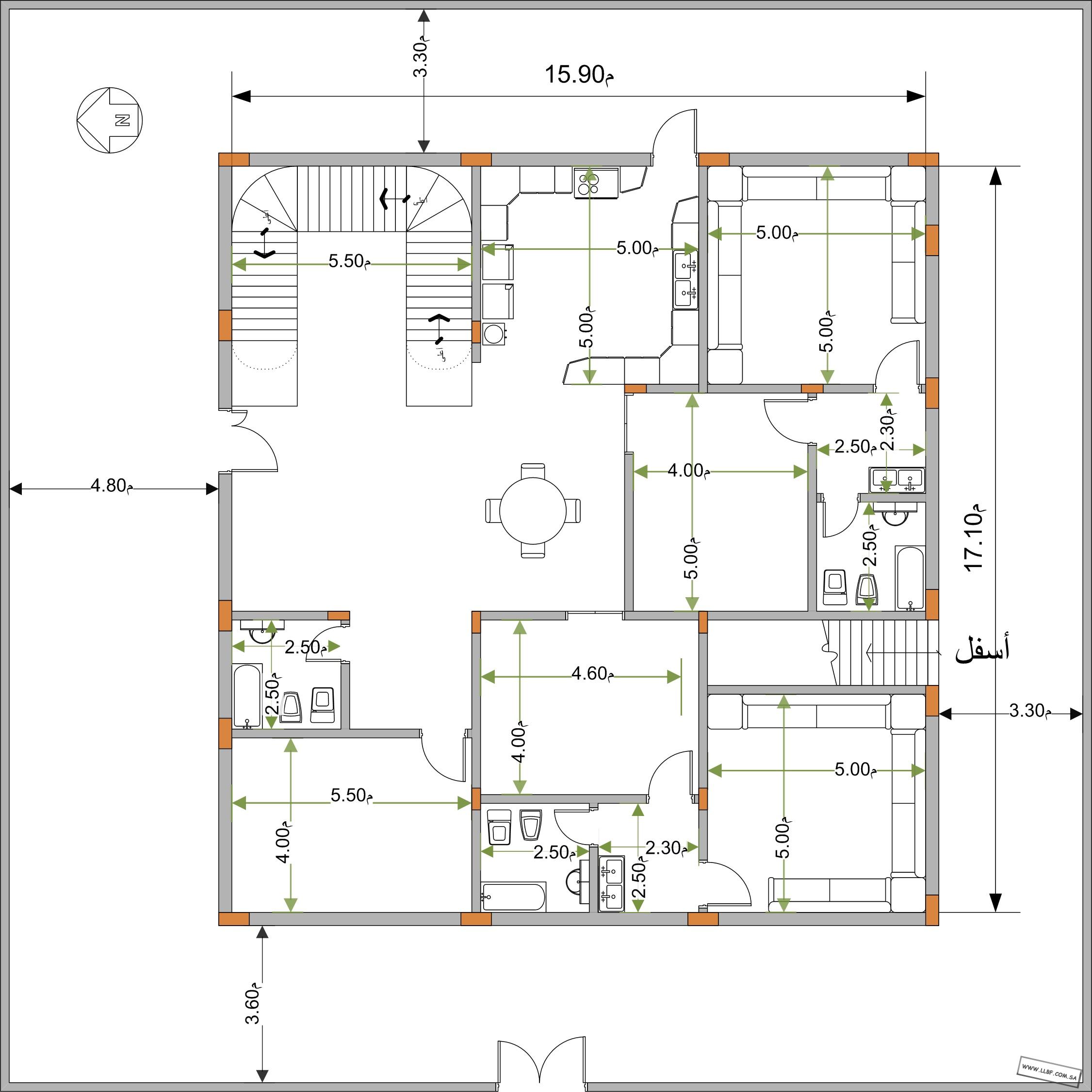
الصور بعد التعديل

http://www.llbf.com.sa/uploads/do.php?img=35011

في الحقيقة لم اضع مخطط للطابق الاول
فبالتالي يبدو أن مواقع الاعمدة خاصة الداخلية سوف تكون غير صحيحة

أعتذر على الاستعجال وعدم المعرفة الكافية بأنه يجب الانتهاء من المخطط قبل وضع الاعمدة


( أخي الكريم نسيت أن اخبرك أني رجل ولست امرأة )

جي آر 08-23-2013 09:56 PM

اهلا اخي الكريم
انا اسف جاء علي بالي انه الدور الاول يبدو انني لم اركز في الكلام
بالنسبه للدرج انا لم احسب الفراغ امام الدرج بل عدد خطوط الدرج في الثلاث لفات
اولا موضع الدرج لابد ان يكون 30 سم وليس 25 سم لكي تستطيع الوقوف وقدمك كامله علي الدرجه
ثانيا اذا كان السقف 4 م فتحتاج 26 درجه بالظبط
تعال نحسبها
26 عدد الدرج *15 ارتفاع الدرج = 390 سم
وهناك 15 سم اللي هيا من اول مستوي الارض الي اول درجه
يصبح الناتج 390 + 15 = 405 سم اي 4.05 م
يعني المفروض يكون في كل طلعه 8 درجات فقط ويكون الاجمالي 24 درجه
وفي كل زاوية بسطه درجه وعندك بسطتين يعني درجتين
شوف الرسم والوضع الصحيح للدرج

http://www.llbf.com.sa/uploads/do.php?img=35012

طبعا حسب المساحه نترك 20 سم من اطراف الدرج وبعدين يبدا الدرج لسببين
انه الدرابزين يكون مرتاح من الاطراف والشكل الجمالي
عرض الدرج 150 سم وصافي العرض بعد الدرابزين من الطرفين 130سم
ارتفاع الدرج 15 سم وعمقه 30 سم

بالنسبه للغرف والمقلط انا عن نفسي مني مقتنع بوجود غرفه داخليه بدون شباك
والمساحه ععندك كبيره مهي صغيره عشان تتحط الغرف كده
بشويه تغير وتعديل نقدر نخلي الغرف علي الواجهه
واسمحلي بهذا التطفل .. لماذا لا تكون الفيلا بشكل جمالي بدل الشكل المربع ؟

لم افهم قصدك من ( في الحقيقة لم اضع مخطط للطابق الاول ) انت تقصد في المنتدي ؟
( وعدم المعرفة الكافية بأنه يجب الانتهاء من المخطط قبل وضع الاعمدة )
المخطط عادة بيكون معماري ووانشائي
المخطط المعماري هو الذي يحتوي علي الشكل العام للفيلا والتوزيع
المخطط الانشائي هو الذي يحتوي علي نفس المعماري مع الاعمده
فالمفترض ان المهندس سوي المعماري ووراك هو ووافقت عليه
وبعدها اشتغل المعماري وحدد اماكن الاعمده

بشكل عام الاعمده عنك مقبوله وكافيه والدور الاول لن يختلف كثير عن الارضي
لانه ما عندك مساحات مفتوحه غير الصاله وهي مربوطه بـ 7 اعمده حولها

لكن لو تنزل المخطط كامل افضل لرؤية التوزيع وابداء الملاحظات لو يحتاج تعديل
قبل ما تورط وتنفذ وتكتشف الاخطاء
تحياتي وتقديري

الأرض الطيبة 08-24-2013 07:43 PM

ما شاء الله عليك وضحت وكفيت

وأشكرك كثيرا

وانشاء الله نتلافى الأخطاء السابقة

وأشكرك مرة أخرى



انتهى


الساعة الآن 08:02 PM.

Powered by vBulletin® Version 3.8.4, Copyright ©2000 - 2025, Jelsoft Enterprises Ltd. TranZ By Almuhajir
F.T.G.Y 3.0 BY: D-sAb.NeT © 2011
HêĽм √ 3.1 BY: ! ωαнαм ! © 2010

a.d - i.s.s.w