منتديات للبناء فنون

منتديات للبناء فنون (http://www.llbf.com.sa/vb/index.php)
-   المخططات المعمارية (http://www.llbf.com.sa/vb/forumdisplay.php?f=20)
-   -   اول مشاركة لي. (http://www.llbf.com.sa/vb/showthread.php?t=8610)

م.علي العُمري 10-07-2013 07:50 AM

اول مشاركة لي.
 
2 مرفق
ابارك لإخواني على هذا المنتدى الذي اسأل الله ان يكون خير معين لنا في ما بحثنا عنه.
والشكر موصول لمشرفي الموقع على هذة الخطوة المتميز في ايجاد من هذة المواقع المفيدة.

منذ فتره وانا اضع مخطط مبدئي لفلتي ( بيت العمر) وكل مرة تتغير عندي بعض الافكار وابدأ من جديد واخيراً وبعد استشارة العديد من الاخوان استقريت على هذا المخطط ويا ليت الاخوان يفيدوننا ويعطوني ملاحظاتهم النيرة.

متمنيا للجميع التوفيق.

ابو لمار 1 10-07-2013 10:04 AM

اهلين م على
اسال الله يدلك على المخطط المناسب اللى يوافق احتياجك
بالنسبه للدور الارضي قسم الرجال جيد
وبالنسبه للقسم الاخر كنت اتمنى ان يكون مجلس النساء غير مكشوف على الصاله وان تحول الدرج امام صاله الطعام وتجعل مكان الدرج الحالي دورة مياه تخدم النساء
وبالنسبه للصاله مارايك لو تجعلها كسرات على شكل مثمن الاضلاع تعطي واجهة جميله
الدور الثاني فقط ملاحظتي الغرفه اللى جوار الدرج فيها كسرات وكذالك الصاله العلويه ومكان صعود الدرج احس المنطقه هذي غير مرتبه واقترح بعد تعديل مكان الدرج ان تكون هذي المنطقه غرف نوم والصاله تكون فوق الشكل المثمن اذ وصلت الفكره
هذا راي يحتمل الصواب والخطاء وتقبل مروري
والسلام عليكم ورحمة الله وبركاته

م.علي العُمري 10-22-2013 07:17 AM

الف شكر ابو لمار.

بانتظار باقي الأعضاء لا تحرمونا من رأيكم في مخططي المبدئي.

م.علي العُمري 10-23-2013 07:11 AM

سبحان الله وبحمده ، سبحان الله العظيم.

متواصل 10-23-2013 11:48 AM

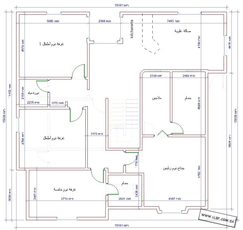
المخطط صغير وغير واضح التفاصيل

م.علي العُمري 10-24-2013 08:15 AM

اقتباس:

المشاركة الأصلية كتبت بواسطة متواصل (المشاركة 200511)
المخطط صغير وغير واضح التفاصيل


لكم جزيل الشكر على تفاعلكم.
تم مراسلتك على الخاص أخي متواصل.

م.علي العُمري 11-13-2013 07:27 AM

2 مرفق
تحية طيبة.
تم تعديل المخطط ، ارجو من جميع المهندسين المشاركة وابداء الرأي.

ولكم خالص الشكر.

م.علي العُمري 11-13-2013 07:39 AM

روابط المخطط المباشرة:

http://www.llbf.com.sa/uploads/do.php?img=35404.

http://www.llbf.com.sa/uploads/do.php?img=35405.

م.محمد بن مساعد 11-13-2013 09:31 AM

وعليكم السلام

صراحه التصميم غير جيد
فيه هدر فراغات وكذلك موقع الحديقة جدا سيئ لصغر طولع في عرضه ..2.5م!!!!

رأيي انت تملك أرض تستطيع ان تجعل منها فيلا العمر فمسطح البناء عندك 225 تقريبا
واحتياجاتك رائعه

عيش التصميم الحالي وتخيل نفسك تمشي فيه وشوف هلا تلاحظ مضايقات ام لا

ابو لمار 1 11-13-2013 01:46 PM

اخ على
عندي بعض الملاحظات على تصميمك
واضح من هذا التصميم والتصميم السابق انك تبحث عن المساحات المفتوحه ولكن لم توفق بترجمتها بهذا المخطط
اولا عملية الدخول الى صاله الطعام غير مناسبه من ناحية المجلس
كذالك عندما يكون عندك ضيوف من الرجال ومن النساء واردت اخذ الشاي وغيره فيكون كشف على صالة النساء
وضع الدرج غير مناسب ولايوجد له اضاءه ووضعه بالمنتصف غير جيد ويفضل ان يكون اوسع ثلاث قلبات
الصالة العايلية مكشوفه من قبل صالة الضيوف
مدخل النساء غير مناسب وتنقصه الجماليه
كيف تستطيع الصعود الى المنزل في حال وجود نساء بصالة الضيوف؟

يفضل يكون دورة المياه بين المجلس وصالة الطعام
اتمنى الا تعتمد هذا المخطط

والسلام عليكم ورحمة الله وبركاته


الساعة الآن 03:43 PM.

Powered by vBulletin® Version 3.8.4, Copyright ©2000 - 2025, Jelsoft Enterprises Ltd. TranZ By Almuhajir
F.T.G.Y 3.0 BY: D-sAb.NeT © 2011
HêĽм √ 3.1 BY: ! ωαнαм ! © 2010

a.d - i.s.s.w