منتديات للبناء فنون

منتديات للبناء فنون (http://www.llbf.com.sa/vb/index.php)
-   المخططات المعمارية (http://www.llbf.com.sa/vb/forumdisplay.php?f=20)
-   -   ما رأيكم في المخطط ؟؟؟؟ اخر ما استقريت عليه !!! (http://www.llbf.com.sa/vb/showthread.php?t=8884)

msr_5 11-30-2013 02:44 AM

ما رأيكم في المخطط ؟؟؟؟ اخر ما استقريت عليه !!!
 

السلام عليكم
واسعد الله اوقاتكم بكل خير

ارجو ان تقبلوني ضيفا عليكم وان كان تسجلي بالمنتدى حديثا فانا متابع للمنتدى واستفدت منه الكثير

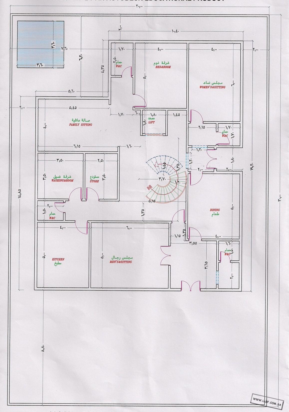
في الصورة المرفقة مخطط لمنزل العمر الذي يتكون من فلة دورين بدرج داخلي
وهو اخر ما استقريت عليه بعد العديد من التعديلات ودمج افكار من عدة مخططات

مساحة الارض 600 متر على الشارع 20 متر والعمق 30 متر
حاولت جاهدا ان احقق الاستقلالية والخصوصية بين اقسام العائلة والضيوف (الرجال والنساء)
وان يحقق المساحات المناسبة للغرف والممرات
ويحتوي الخدمات المساعدة كالمصعد والمستودع وغرفة للغسيل والمسبح
مع ملحق (مشب و دورة مياه) بالحوش

الدور الارضي

http://www.llbf.com.sa/uploads/do.php?img=35503


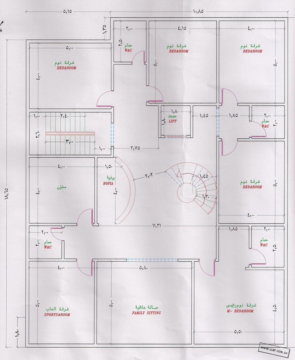
وهذا الدور العلوي

http://www.llbf.com.sa/uploads/do.php?img=35502



1- أحب أن أقرأ تقيمكم وتعطوني اقتراحاتكم و ملاحظاتكم على المخطط بشكل عام.
2- وهل الدرج الدائري مناسب؟ مادري شكله ماني مرتاح له يمكن لو يكون بيضاوي او يدمج الدائري مع حرف يو على الجدار
3- الجدران الداخلية بعرض 15 سم هل هي مناسبة ؟ لان زيادتها سوف تؤثر على المساحات قليلا.
4- افكر بوضع مخزن للمطبخ جهة الارتداد المترين هل يوضع بالمخطط ام يتم التنسيق مع المقاول اثناء التنفيذ؟
5- افكر بوضع بلكونة مع الغرفة الرئيسة جهة الحوش . رايكم ونصايحكم ؟؟
6- شكل المسبح كيف ممكن يكون للاستفادة المثلى من المساحة للمسبح والجلسة حوله؟
7- بالاضافة لوضع مخطط للسطح وش اللي تنصحوني احط فيه ؟ مبدئيا غرفتين ودورة مياه.
8- كيف يمكن تحسين النواحي الجمالية مثلا اضافة كسرات او استدارة للجدران دون اضاعة الكثير من المساحة ؟

طلباتي كثيرة لكن حاولت ارتبها لتسهيل الرد
والله يعينكم علي و شكرا للجميع

م.محمد بن مساعد 12-01-2013 12:30 AM

السلام عليكم
مخطط مرتب بس يبيله روقان

باذن الله بكره اركز فيه واقولك ملاحظاتي

msr_5 12-01-2013 01:48 AM

وعليكم السلام م.محمد بن مساعد

اشكرك على التفاعل و وخذ راحتك وروق على اقل من مهلك

انتظر ملاحظاتك وتعديلاتك وخصوصا النواحي الجمالية

الله يوفقك يا غالي

جي آر 12-01-2013 10:13 AM

اسعد الله اوقاتك اخي الكريم
احترم رأي مهندس محمد بن مساعد لكن المخطط يفتقد اللمسات الجمالية
والمساحه مشاء الله جيده تسمح بعمل لمسات جماليه للواجهه والتوزيع الداخلي
لا اري اي ابداع في التوزيع غير هدر مساحات خصوصا منطقة الدرج مع الموزعات
المساحه المفتوحه لمنطقة الدرج لها لمساتها الجماليه اذا اعيد التوزيع الداخلي ليكون اكثر تناسق
جمال الدرج يكون في مواجهه الصالة له خصوصا وانه درج دائري
شعاع الدرج ضيق وهذا ينتج عنه ضيق في عرض الدرج ناحية المحور او مركز الدرج
وهو خطير للاطفال او حتي الكبار في حال لم ينتبه له
ومع احترامي للمهندس اللي صممه ما في شي اسمه عرض الجدار 15 سم عشان المساحه ضيقه
مشاء الله عندك ارض عرضها 20 م !!
انا صممت فيلا عرض الارض 13.50 م وما نزلت من عرض الجدار وطلعت غرف واسعه اقل غرفه 5*4
عرض الجدار الضيق نستخدمه فقط في توزيع المكاتب او تقسيمها ام الفلل والعمائر لا
وبعدين كم حنختصر من المساحه 20 - 30 سم وزعها علي عدد الجدار تلاقيك ما سويت شي ما وفرت شي من المساحه
عموما اري ان تتريس في اتخاذ القرار بالنسبه للمخطط وعدم الاستعجال في اعتماده
لانه يحتاج الي اعادة تشكيل من جديد ليكون اكثر تناسق وجمال
اذا حابب اساعدة في تعديل المخطط بشكل افضل ويكون في لمسه جماليه فأنا تحت أمرك
تقبل تحياتي وتقديري

م.محمد بن مساعد 12-01-2013 06:24 PM

السلام عليكم

انا اعجبني في التصميم مايلي :-
- الخصوصية للضيوف والعزل عن باقي الفيلا
- اعجبني فكرة طاولة الطعام المشتركة
- فكرة اطلالة الصالة العائلية ع المسبح
- مساحاة الغرف جدا كبيره
- حديقة او فراغ امامي بعرض 8.8م وهذي فيها فرصة عمل ابداعات من خلال حديقة او مشب او بيت شعر وملاعب اطفال

وانا احترم دائما رغبات ... فـ لو قرأنا بداية كلام صاحب الموضوع لوجدنا انه ركز ع خصوصية الضيوف واهتمامه بكبر مساحة الغرف وحرصه على حوش اكبر
ويكفي ان تكون بداية التصميم من هذه النقاط ... مع اني اوافق جي أر على ملاحظاته

التصميم يحتاج الى اعادة ترتيب والابقاء على فكرة خصوصية الضيوف ومن هذه النقاط
- لايوجد مدخل فخم للفيلا .. لاهالي الفيلا ... فـ يهمني كـ صاحب فيلا ان يكون لي مدخل فخم سواء كان يخدم مدخل ضيوف الرجال او النساء ... لابد ان يكون اولوياتي هي انا وعائلتي وحياتي اليوميه وبعدها تأتي اولويات الضيوف

- الدرج موقعه وتصميمه سيئ جدا وخطر
- هدر مساحات خصوصا جنبي الاصنصير ... كذلك المستودع وغرفة الغسيل والحمام ومدخل المطبخ
- هناك عمود نازل للغرفة العلويه حيكون في منتصف المسبح الا اذا كان له معالجة اخرى؟!!

انصحك بـ إعادة تشكيل فراغات الفيلا من جديد مع الابقاء على فكرة خصوصية الضيوف والحديقة الخلفية
وان يكون للفيلا مدخل فخم وخليك على البلك ابو 20سم


الله يوفقك للرأي السديد ويجعله منزل مبارك يارب

msr_5 12-01-2013 07:15 PM



اهلا وسهلا حياك الله اخي جي آر
وانا سعيد بمرورك واتفأل به لاني بدات من احد المخططات اللي انت معدل عليها وكان فلة امامية وشقق بالخلف وصغرته ليناسب عرض 20 متر
ولكن وجدت ان الشقق صغيرة وضايقت الفلة فتم الغاء فكرة الشقق بالخلف والتعديل على مخطط الفلة واخذ افكار من عدة مخططات
واخيرا وصلت لهذا التصميم والتفأل زي ما بديت من تعديلاتك ينتهي المخطط بتعديلاتك دون قصور ببقية الاخوة هنا جميعا

انا معاك التصميم ينقصه الكثير من الجمالية وبالذات منطقة الدرج اللي ماني مرتاح له يمكن عشان الشعاع الضيق اللي قلت عليه
معاك حق جمالية الدرج يكون امام الصالة ولكن هناك جمالية اخرى بان الصالة تطل على المسبح والحديقة البسيطة امامه

بالنسبة لعرض الجدار 15 سم الاشكالية بزيادتها تاثيرها على عرض المدخل من قسم الرجال الى قسم العائلة وهو ضيق اساسا
ولايحتمل اي نقص من عرضه والحل المرفوض تصغير المجلس والحل الممكن جعل عرض المقلط 3متر ونص وهو حل يحتاج لدراسة واعادة تفكير

عموما المخطط مبدائي ويحتاج للتأني وبعد اعتماده لا مجال للتعديل ولا يبقى الا الندم وكلمة (لو) ولهذا اطلب مساعدتكم جميعا

في النهاية ما يامر عليك عدو اكيد محتاج لمساعدة امثالك من المبدعين
بوضع اللمسات الجمالية والتعديل على التوزيع بدون حذف المكونات الاساسية او تصغير الحوش الامامي

شاكرا جهدكم و وقتكم وافكاركم جميعا ولكم مني اخلص الدعوات واطيب الامنيات

انتظر ردك انت وبقية الاخوان في المنتدى

والله الموفق


msr_5 12-01-2013 08:07 PM

حياك الله اخي المهندس محمد بن مساعد واشكرك على التواصل

يا سلام عليك احسك فاهمني ما اعجبك هو ما يجعلني افضل هذا المخطط واتمسك به مع التعديلات اللازمة

نبهتني على فخامة المداخل . فمدخل النساء المساحة لا تساعد كثيرا ولكنه عملي وجماليته ببساطته مع بعض اللمسات اللي انتظر تساعدوني بها .
ومدخل الرجال اتوقع مساحته معقوله واللمسات بتكون امام المدخل وخصوصا اني انوي وضع بلكونه فوقه فتصبح مظلة للمدخل بنفس الوقت . وش رايكم.

الدرج ماهو عاجبني ابدا . والمساحات المهدرة انا شايف ماهي كبير ومجبر عليها . انتظر افكارك ونصايحك بهالموضوع خصوصا الدرج.

بالنسبة للعمود النازل عند المسبح اعتقد موضوعه بسيط ممكن يكون اثنين من جهتين على طرف المسبح وممكن يتغير شكل المسبح وياليت تنصحني برسم شكل جمالي وعملي للمسبح.

اشكرك على النصيحة وبيض الله وجهك ولكن بالنسبة لي خلاص جفت الافكار يادوب وصلت لحد هنا وعلى قولتهم (غلب حماري)
ياليت المساعدة بافكارك اذا سمح وقتك ولو برسم مبدئ سريع بخط اليد

ولله يعطيك العافية ماقصرت ياغالي

ابو لمار 1 12-01-2013 11:24 PM

وعليك السلام ورحمة الله وبركاته
اخي الفاضل المخطط وظيفيا جيد ولكن تنقصه الجوانب الجماليه في المداخل
عندي ملاحظه موقع المطبخ كنت اتمنى يكون مكان غرفة النوم
حمام النساء بالوجهة وهذا غير مناسب
منطقة الخدمات امام المطبخ اخذت مساحة وتنقصها غرفة خادمه
الصالة الداخليه والدرج غير مناسب واضاع مساحة الصالة وانا انصحك ان يكون الدرج ثلاث قلبات على واجهة الغرفة النوم والمصعد بينها
لاتستعجل في اعتماد المخطط فسوف تلقى الا فضل باذن الله
الدور الثاني جيد التوزيع
وهذا نوذج فيه الجمالية يمكن ان يفيدك وهو مخطط لارض 500م

http://im32.gulfup.com/ua6Wj.jpg

ابوحور 12-02-2013 12:27 AM

السلام عليكم اخوي نصيحه انحش عن الدرج الخلي قصدي الدرج دئري والشي الثاني باب المقلط الثاني كاشف لباب مجلس النساء والشي الثاني صوت النساء قريب لمقلط على العموم هذارئي والبيت بيتك وانت حر الله يرزقك ملاحظ البيت مره في العمر

msr_5 12-02-2013 07:20 AM


اهلا وسهلا اخي العزيز ابولمار
ملاحظة تبديل المطبخ وغرفة النوم نبهتني عليها واعدك باعادة التفكير بذلك
ولو اني مبدئيا ارى اهمية قرب المطبخ والخدمات كالمستودع وغرفة الغسيل اللي ممكن تصير غرفة خادمة بنفس الوقت فمساحتها مقبولة

بالنسبة لحمام النساء فهو ليس بالواجهة بل في الارتداد الجانبي و مدخل النساء يجي قبله

اما الدرج الارضي وما حوله فهو الصداع المزمن لي في هذا المخطط .
ووضعه جهة غرفة النوم اعتقد انه سيؤثر على مداخل الغرف في الدور العلوي

بالنسبة للمخطط اللي انت حطيته يتمتع بكثير من الجمال ولكن لا ارى انه يحقق متطلباتي اللي وضحها المهندس محمد
واعتقد ان التعديل على مخططي افضل من البحث من جديد عن مخطط واعدل فيه من جديد
اشكرك جزيل الشكر على جهدك واهتمامك وما زلت انتظر تعديل بالرسم ان امكن للدرج وما حوله فهو اكبر العيوب
اما النواحي الجمالية فان جاءت بتعديل بسيط او لن اضحي بالخدمات والوظائف حلى حساب المظهر


والله يوفقك ويشفي مرضاك يا غالي


الساعة الآن 05:23 AM.

Powered by vBulletin® Version 3.8.4, Copyright ©2000 - 2025, Jelsoft Enterprises Ltd. TranZ By Almuhajir
F.T.G.Y 3.0 BY: D-sAb.NeT © 2011
HêĽм √ 3.1 BY: ! ωαнαм ! © 2010

a.d - i.s.s.w