منتديات للبناء فنون

منتديات للبناء فنون (http://www.llbf.com.sa/vb/index.php)
-   المخططات المعمارية (http://www.llbf.com.sa/vb/forumdisplay.php?f=20)
-   -   مهم جدااااااااا (http://www.llbf.com.sa/vb/showthread.php?t=8910)

Tarig1399 12-05-2013 07:11 AM

مهم جدااااااااا
 
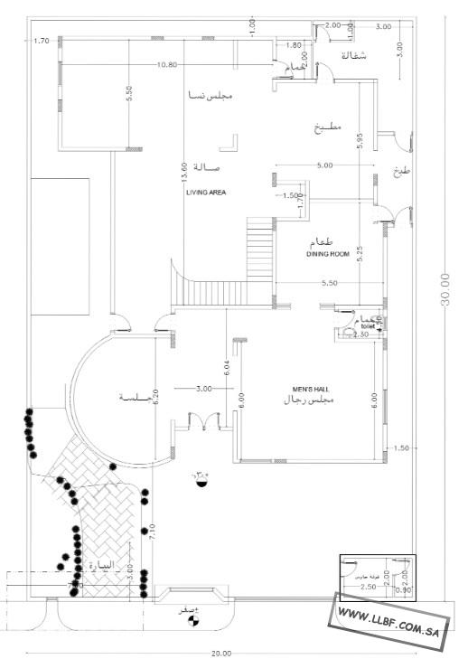
هذا مخطط بيت المستقبل وحاليا مازلت في الخرائط اتمني من الجميع ابداء وجهة النظر
الدور الارضي
http://www.llbf.com.sa/uploads/do.php?img=35532
الدور الاول
http://www.llbf.com.sa/uploads/do.php?img=35531
شكرا لكم

Tarig1399 12-05-2013 07:31 AM

نسيت اكتب معلومات عن الارض
الارض عبارة عن ٢٠ متر علي الشارع * ٣٠ متر العمق
الواجهه شرقية علي شارع ٢٠
يحدها من الشمال جار
من الجنوب حديقة
من الغرب حديقة

منصور منيف 12-08-2013 12:29 AM

جعله مسكن العافيه

ابو لمار 1 12-10-2013 01:38 PM

بالنسبه للدور الارض ملاحظتي ان المجالس مفتوحه على المغاسل ودوراة المياه
يفضل ان يكون مدخل النساء قريب من مجلس النساء بدل من العبور الى الصاله
الشكل الدايري للمجلس ممكن يفيدك ا لمهندسين فيه ولكن انا ارا انه لم يودي الغرض الجمالي المطلوب منه بالاضافه الى صعوبة تاثيثه
انعدام الخصوصية بصالة المعيشه
وعندي سؤال اين سوف تضع التلفاز والكنب في صالة المعيشة
الدور الاول
اقترح جعل التقوس داخل بغرفة النوم الرئيسة
والسلام عليكم ورحمة الله وبركاته


الساعة الآن 02:43 PM.

Powered by vBulletin® Version 3.8.4, Copyright ©2000 - 2025, Jelsoft Enterprises Ltd. TranZ By Almuhajir
F.T.G.Y 3.0 BY: D-sAb.NeT © 2011
HêĽм √ 3.1 BY: ! ωαнαм ! © 2010

a.d - i.s.s.w