منتديات للبناء فنون

منتديات للبناء فنون (http://www.llbf.com.sa/vb/index.php)
-   المخططات المعمارية (http://www.llbf.com.sa/vb/forumdisplay.php?f=20)
-   -   يسعدني إبداء رأيكم عن المخطط لفيلا سكنية مع استراحة (http://www.llbf.com.sa/vb/showthread.php?t=8991)

hshedwi 12-18-2013 02:51 PM

يسعدني إبداء رأيكم عن المخطط لفيلا سكنية مع استراحة
 
السادة والسيدات الافاضل

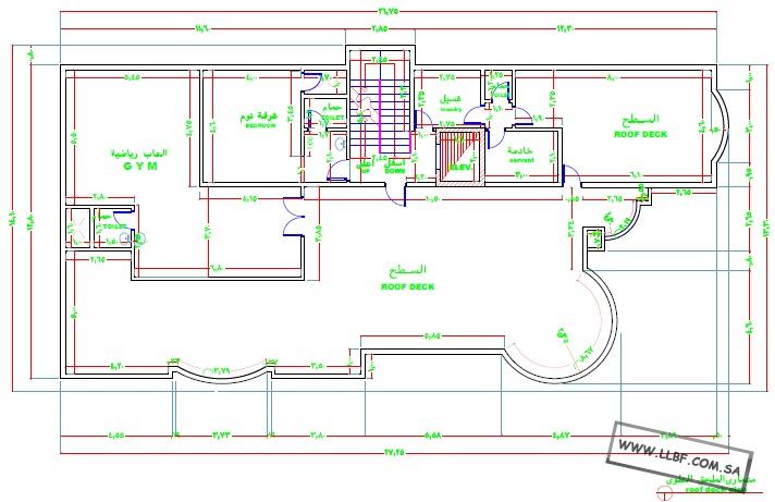
يسعدني ويشرفني إبداء رأيكم عن المخطط المبدئي لفيلا سكنية تقع على ثلاث واجهات مع استراحة خاصة مفصولة تقع في خلف الفيلا. :confused:

ولكم الود والتقدير.


http://www.llbf.com.sa/uploads/do.php?img=35581


http://www.llbf.com.sa/uploads/do.php?img=35582


http://www.llbf.com.sa/uploads/do.php?img=35583


http://www.llbf.com.sa/uploads/do.php?img=35584

ابو لمار 1 12-20-2013 01:50 PM

اخي الفاضل
الفيلا ماشاء الله تبارك جيده ولدي بعض التعديلات البسيطة
مثلا جعل صالة الاستقبال مستقله كمختصر وتعديل الباب

http://im39.gulfup.com/Zm9Jb.jpg

وهنا تعديل لمجلس الرجال وتغير مكان دورة المياة
http://im35.gulfup.com/enjqU.jpg

تعديل للصالة العلوية

http://im39.gulfup.com/8twYM.jpg

وهناك بعض الملاحظات البسيطه مثل مدخل صالة الطعام في الاستراحة من المجلس
لو تفكر بحل لمدخل النساء
ولو تجعل البلكونه تابعه لغرفة النوم الرئيسية
وفي الملحق يمكنك فتح مدخل لصالة الرياضيه من جوار غرفة النوم بدل مايطلع على السطحثم الدخول للمنزل

hshedwi 12-20-2013 03:02 PM

اشكرك اخي ابو لمار على اقتراحك وابداء رأيك كما انني اعتقد ان البلكونه تتبع لغرفة النوم جيده ولكني وضعتها تتبع للصالة ليوضع بها ادوات المشب كالحطب وغيره حيث يوجد مشب بالبلكونه ويفتح على الصالة.
وبالنسبه لدورة المياه فقد وضعت لتكون معزولة عن المجلس وتجنب وجود روائح وغيره ومن ناحية اخرى يعزل المطبخ عن المجلس.
اما بالنسبه للاستراحه ففعلاً فكرة الباب المفتوح من المجلس للمقلط يجب ان تلغى.

كما انني اشكرك اخي مرة اخرى وتقبل خالص الود والتقدير.

hshedwi 12-30-2013 03:34 PM

اخي ابو لمار لقد عملت بعض التعديل بحيث يكون المختصر مستقل بعد ان كان اشبه بالممر مع المحافظه على وظعية ان يكون المجلس مفصول عن المطبخ بدورة المياه وتم إلغاء المخزن وعمل باب من الموزع للقهوه والشاي عند الظروره عوضاً ان تكون عن طريق المقلط وبذلك تكون هناك خصوصية لجميع الغرف.

كما اشكرك للمره الثانيه ويسعدني ابداء رأيك بالتعديل الجديد.

http://www.llbf.com.sa/uploads/do.php?img=35619


http://www.llbf.com.sa/uploads/do.php?thmb=35619

ابو لمار 1 12-31-2013 08:49 AM

الان افضل من السابق
واحسنت بابعاد المستودع
ويمكنك الاستفاده من تحت الدرج كمستودع
بالنسبة لمدخل النساء
مقترح ادرسه انك تترك مسافة 60سم مثلا ثم الباب ليكون مكان لتعليق العبايات او في الممر 1.30 بحيث تترك مجال للعبايات

هذاي راي المتواضع ويمكن المهندسين الكرام افادتك اكثر
واتمنى من المهندسين الكرام يفيدونك من ناحية وجود دورة المياة والمجلس امام المدخل الرئيسي

hshedwi 12-31-2013 09:24 PM

شكراً لك اخي ابو لمار على اقتراحاتك الرائعه والتي قد اسهمت كثيراً في التحسينات المفيده كما ان مدخل النساء تحت الدراسة وسنوافيكم ان شاء الله بالتغييرات.


الساعة الآن 02:24 AM.

Powered by vBulletin® Version 3.8.4, Copyright ©2000 - 2025, Jelsoft Enterprises Ltd. TranZ By Almuhajir
F.T.G.Y 3.0 BY: D-sAb.NeT © 2011
HêĽм √ 3.1 BY: ! ωαнαм ! © 2010

a.d - i.s.s.w